Il 16 marzo 2012 il Parlamento Europeo ha approvato una risoluzione non legislativa (una roadmap per un’economia competitiva a basse emissioni di carbonio nel 2050), nella quale si stabilisce che “l’Unione europea deve servirsi di politiche in materia di energia, trasporti ed agricoltura per ridurre le emissioni di CO2, e migliorare il suo Emissions trading system (Ets), al fine di rendere, entro il 2050, l’economia più competitiva e molto meno dipendente dalle energie fossili”. Da quel momento in poi è stato chiesto a ogni stato membro di interessarsi a delle manovre che fossero compatibili con uno sviluppo sostenibile, mirate alla tutela dell’ambiente e dei beni liberi per le generazioni future.
Il settore dell’edilizia da sempre è l’asse portante per ottenere risultati rilevanti sulla riduzione dei consumi energetici e quindi delle emissioni climalteranti.
Spesso le cause dell’inefficienza energetica degli edifici si ritrovano in una non corretta progettazione del complesso “edificio-impianto”, da imputare non solo ai fabbricati di nuova costruzione, ma soprattutto a quelli già esistenti: il consumo legato alle costruzioni realizzate in Italia dalla fine della seconda guerra mondiale agli anni ’80, che costituiscono il 50% del patrimonio edilizio nazionale, è pari a circa 160 kWh/m2, contro i 75 kWh/m2 di uno stabile di nuova costruzione.
La riqualificazione energetica delle strutture esistenti, con interventi mirati sull’involucro e sugli impianti, diventa un obiettivo prioritario e strategico della nuova edilizia. Tale azione, oltre a migliorare sensibilmente le condizioni abitative, consentirebbe una riduzione dei consumi energetici superiore al 50%, con ricadute positive sia per l’ambiente, sia per gli utenti che vedrebbero diminuire i costi della propria bolletta energetica.
Valutare gli interventi da applicare al sistema involucro di un edificio esistente per un’efficienza energetica più sostenibile da un punto di vista economico, strutturale ed energetico, può risultare un operazione difficile se non si conoscono i limiti dei componenti edilizi interessati.
Può essere utile in tal senso esaminare come approcciarsi ad alcuni sistemi prefabbricati con cui si sono costruiti edifici popolari negli anni ’80.
Il Triedro, Sistema Tridimensionale per l’Edilizia Industrializzata Civile
Il Triedro è un sistema tridimensionale brevettato per l’edilizia industrializzata civile, indirizzato al settore abitativo, commerciale, direzionale. Si basa sull’impiego di un elemento modulare spaziale costituito da tre pannelli piani che svolgono contemporaneamente la funzione architettonica e strutturale. All’elemento triedro si aggiungono altri componenti quali i pannelli di solaio, gli infissi, gli elementi divisori.
Il vantaggio del sistema Triedro è determinato dal fatto che le pareti di ogni elemento triedro sono collegate fra loro e con il solaio in modo da costituire un sistema scatolare monolitico resistente sia alle azioni verticali sia alle azioni orizzontali. Il comportamento della struttura è dettato dalla sovrapposizione di pannelli portanti con misure del modulo Triedro 2,50 x 7,75 x h 2,95 m.
L’addizionalità, la sostituzione e la combinazione fra i singoli elementi bi-tridimensionali hanno permesso di eseguire rapidamente gli schemi compositivi dell’alloggio senza limite al ripetersi degli accostamenti.
Mostrando in figura la sezione della parete, è evidente come il sistema non contempla l’uso di materiale isolante, non garantisce dunque un’adeguata coibentazione dell’ambiente interno; in compenso l’edificio presenta uno spessore di parete di 25 cm, abbastanza buono rispetto ad altri sistemi prefabbricati, che verranno mostrati in seguito.
Si pone ora la riflessione su come poter intervenire sul sistema, sfruttando gli aspetti positivi e migliorando le debolezze, per raggiungere l’obiettivo di una adeguata riqualificazione.
I solai caratterizzati dall’accostamento di elementi alleggeriti, laterizi forati della dimensione 50x25x20 cm, presentano maggiori possibilità d’intervento, quali ad esempio il facile smantellamento di parti deteriorate, il rifacimento ex novo, e varie soluzioni tecnologiche adattabili.
Al contrario, il carattere portante delle pareti obbliga a non intervenire sulla struttura, ma permette solo di coibentare esternamente la parete con uno strato adeguato d’isolante, in modo da riequilibrare le dispersioni termiche, realizzando il cosiddetto “cappotto esterno”.
Una volta progettata la “composizione” degli elementi triedro, il sistema non offre la possibilità d’intervenire sulla disposizione interna dei vani in un secondo momento per ottimizzarne gli orientamenti, né di inserire nuove superfici finestrate al fine di migliorarne la ventilazione interna.
Un’altra soluzione percorribile è quella di operare dall’interno, con soluzioni tecnologiche che non compromettono l’elemento.
In conclusione, per tale tipologia di sistema non si suggeriscono interventi di sostituzione e quindi smontaggio dei pannelli, ma applicazioni poco invasive da addizionare all’elemento, migliorandolo senza modificarlo.
Il Sistema Costruttivo S.B.S. con Componenti in Cemento Armato
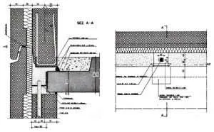
Il sistema S.B.S., realizzato con componenti in cemento armato e modulato sulla misura preferenziale di 75 cm (60 cm), è formato dall’accostamento di due tipi fondamentali di elementi prefabbricati: i pannelli e i solai, di cui si riportano le immagini sottostanti.
Gli elementi costruttivi sono realizzati in cemento armato vibrato e presentano diverse cavità vuote o riempite con varie tipologie di materiali isolanti: una miscela di cemento e lolla di riso, o da argilla espansa, o infine da polistirolo espanso granulato. Quest’ultimo si può ritrovare sotto forma di pani usati per l’isolamento dei solai d’interpiano o di copertura.
I pannelli portanti sandwich si ritrovano come multipli del modulo delle dimensioni 3,06 m in altezza e spessore 0,25 m e sono costituiti da due strati di parete esterni in cemento armato, divisi da una camera d’aria, e collegati da nervature ogni 60-75 cm. Si mostra l’unione delle due tipologie di pannello.
I solai in cemento armato retinato e vibrato raggiungono solitamente una dimensione pari a 7,50 m di lunghezza con spessore 0,25 m e larghezza 2,25 m. Come per i pannelli parete, anche questi sono formati da due solette in cemento armato con interposte nervature che formano fori longitudinali. Il collegamento tra solai e pannelli è realizzato mediante un cordolo in c.a. gettato in opera, completo di armatura verticale e orizzontale. Inoltre, S.B.S è un sistema aperto all’assemblaggio di elementi di altra provenienza, tipo solai Bausta e altri, compatibili con il principio di collegamento adottato.
Valutando gli aspetti energetici della tecnologia presa in esame, la conformazione di entrambi i pannelli è caratterizzata dalla presenza di ampi e diversi fori che riducono l’ampiezza dello spessore del cemento a soli 3-4 cm, fornendo poca massa al sistema.
Prendendo in considerazione i casi in cui i fori non sono stati riempiti con materiale isolante, in mancanza di un’adeguata impermeabilizzazione, la condensa può causare dei ristagni.
Al contrario del Triedro, questo sistema è caratterizzato dall’unione di diversi elementi in opera, con conseguente formazione di ponti termici.
Tuttavia SBS rispetto ad altre tecnologie di prefabbricazione dello stesso periodo, fornendo la possibilità di riempire i fori di isolante, risulta tra i pochi sistemi in grado di offrire una minima coibentazione all’edificio, pur presentando limiti dovuti ai continui ponti termici.
Per quanto riguarda gli elementi costitutivi, i pannelli sono molto leggeri, grazie allo spessore esiguo dello strato in cemento armato e dei fori contigui, che consentono facilità e velocità di montaggio. Questo permette flessibilità nella variazione della disposizione interna degli ambienti in futuro, perché i pannelli portanti sono relegati alle sole pareti esterne. Potrebbe tuttavia non offrire la possibilità di intervenire esternamente sui pannelli (ma solo con sistemi fissati ai cordoli perimetrali), perché si rischierebbe a un appesantimento della struttura che, a causa della leggerezza del pannello, non può essere sostenuta dai 6-7 cm di spessore in cemento armato.
Sia nel caso in cui nelle pareti siano presenti cavità vuote che in quello in cui siano riempite con isolante, il sistema SBS offre la possibilità di intervenire attraverso la formazione di un cappotto esterno, nell’intento di migliorare o creare l’isolamento adeguato dell’edificio. In effetti risulta più veloce e più efficace una soluzione di intervento addizionale all’esistente, piuttosto che agire puntualmente sui ponti termici: con il tempo l’isolante potrebbe perdere la sua dimensione originaria restringendosi, provocando una riduzione nelle capacità di coibentazione, ma anche la formazione di muffe nella fase di condensa, difficilmente bonificabili.
Inoltre SBS può sostenere varie soluzioni tecnologiche e a cui si possono applicare interventi dall’interno, come la progettazione di una parete ventilata nei casi in cui lo strato di isolante sia stato rilevato in ottime condizioni. Il pannello parete non permette però lo smontaggio dei componenti, perché portante, e sono escluse, dunque, soluzioni di rifacimento ex-novo.
In conclusione, il modello preso in esame è un sistema:
- che garantisce all’edificio esistente un isolamento minimo, che può essere aumentato e migliorato nell’efficacia
- fornisce la possibilità di intervenire nella sola direzione dell’aumento della massa inerziale (casistica che si può proporre solo se è presente uno strato adeguato di isolante nella parete)
- nel caso in cui le condizioni del materiale isolante interstiziale non siano buone, consente di addizionare al sistema entrambe le soluzioni tecnologiche: sia di isolamento che inerziali.
Il Sistema di Prefabbricazione a “L”
Il sistema di prefabbricazione denominato a “L” è realizzato mediante l’uso di pannelli autostabili in calcestruzzo armato dello spessore di 10-12 cm. È formato da due piani ortogonali, una parete verticale e il solaio orizzontale, collegati rigidamente. I bordi orizzontali del solaio, in corrispondenza del lato lungo, presentano una conformazione cosiddetta “a sella”, perché consentono l’appoggio sugli “L” delle componenti piane del solaio. Lungo il lato corto si ha una conformazione a sella rovesciata, in modo tale che l’elemento “Elle” possa appoggiarsi ad altri analoghi e a elementi tridimensionali portanti.
Il componente fondamentale può essere di vari tipi: a pilastrini, a sbalzo, ad angolo. L’elemento base ha una larghezza fissa di 2,4 m e lunghezza variabile ogni 60 cm fino a 6 m. Il sistema “L” prevede degli elementi tridimensionali portanti come il blocco scale e il blocco bagno, che sono il primo riferimento di appoggio per i componenti “Elle” del solaio, e svolgono la funzione di controventatura.
Lo schema statico adottato per il sistema è un telaio tridimensionale.
Valutando gli aspetti energetici del sistema L, si possono notare delle somiglianze con il sistema Triedro: si garantisce la massa termica con uno strato unico monolitico di calcestruzzo senza contemplare spessori isolanti. Il vantaggio del sistema è la ridotta presenza dei ponti termici.
Da un punto di vista tecnologico, il sistema garantisce una grande versatilità d’impiego, infatti, attraverso l’assemblaggio dei vari elementi “portanti”, si ottengono strutture di qualsiasi dimensione. La forma a “L” è più flessibile rispetto a quella a triedro; tuttavia, il carattere monolitico non consente di adottare sottrazioni per eventuali manutenzioni, per il rinnovo dei pannelli o la sostituzione.
Pur garantendo sicuramente maggiori margini/possibilità d’intervento rispetto al Triedro, risulta comunque uno dei sistemi meno flessibili.
Inoltre, avendo una parete di calcestruzzo sufficientemente consistente, il sistema “L” riduce in ambito energetico le necessità di riqualificazione, riconducendola al solo isolamento termico: attraverso soluzioni in cui si adottano materiali per aumentare la massa non offrirebbero contributi significativi.
Complessivamente è un sistema che avendo massa e pochi ponti termici, attraverso l’introduzione di un cappotto esterno può garantire gli standard di comfort richiesti, ottenendo un comportamento simile a quello degli altri sistemi tradizionali.
Il Sistema Costruttivo a “K”
Il sistema “K” si compone di elementi prefabbricati in cemento armato da collegare in opera tramite getti integrativi di calcestruzzo, pilastri, travi, pannelli di solaio. I pilastri con altezza pari a un piano del fabbricato hanno una sezione costante e con estremità conformate per adattarsi all’appoggio delle travi: in testa il pilastro presenta dei fori per l’alloggiamento dell’armatura d’attesa sporgente dalla base del piano superiore.
Al fine di garantire un incolonnamento autocentrante del sistema, l’estremità del pilastro presenta uno spinotto sporgente, ancora in fase di prefabbricazione, che trova riscontro nell’alloggio predisposto alla base dei pilastri stessi. Le travi, realizzate in stabilimento e completate in opera, presentano sezione a T rovescio e sono armate con un traliccio metallico sporgente all’estradosso.
La sezione varia a seconda della ubicazione della trave stessa, se di bordo o di spina. I solai possono essere realizzati in latero-cemento o facendo uso dei sistemi tradizionali in opera, lasciando comunque la possibilità anche di assemblaggio con pannelli prefabbricati in stabilimento o a piè d’opera in cemento armato alleggeriti.
Per quanto riguarda gli aspetti tecnologici il sistema risulta aperto, perché offre la possibilità di realizzare i tamponamenti e le opere impiantistiche, nonché le finiture attraverso l’uso di tecniche diverse.
Per la sua versatilità e il facile montaggio è uno tra i sistemi ancora in uso, grazie anche alle buone prestazioni antisismiche, in relazione alla capacità dissipativa dell’azione sismica dovuta alla duttilità delle unioni e per la minor deformabilità dei telai.
Il sistema “K”, rispetto alle altre tipologie di prefabbricazione, permette una più ampia manovra di intervento, sia in sede di demolizione che di risanamento, perché favorisce l’aggregazione di solai e pareti tradizionali.
Non essendo composto da pannelli prefabbricati portanti, la parete può essere progettata a piacimento nel rispetto dei livelli di comfort interni e di facilità di costruzione. È un sistema molto flessibile, dove si possono addizionare altri sistemi e intervenire sia a livello energetico, distributivo e funzionale degli spazi, sia a livello manutentivo, che a livello sostitutivo.
Il Sistema di Prefabbricazione “S8GS”
Il sistema S8GS consente la realizzazione di edifici pluripiano con grandi pannelli verticali portanti prefabbricati, associati ad altri pannelli di solaio di vario tipo. I pannelli generalmente sono composti da conglomerato pesante, ma vi è anche la possibilità d’impiego di calcestruzzo leggero strutturale. Ogni pannello è provvisto di una piastra o profilato a cui viene ancorato tramite zanche. Sono previste adeguate pareti armate aventi funzione di controventamento.
L’S8GS si distingue dagli altri sistemi per la possibilità di impiegare qualsiasi tipo di solai. Sotto ogni pannello è prevista una trave rovescia di elevata rigidezza il cui collegamento è garantito da innesti metallici. La fondazione in tal senso è costituista sempre da un reticolo di travi rovesce.
Le pareti verticali assolvono la funzione di reggere il carico verticale trasmesso dai solai e le azioni orizzontali derivanti dalle azioni del vento, del sisma e dai difetti di perpendicolarità delle pareti stesse. Le pareti verticali portanti che sono perpendicolari alle precedenti assolvono essenzialmente la funzione di controventamento.
I pannelli di parete interni portanti di calcestruzzo, con spessori variabili dai 14 ai 20 cm, sono realizzati attraverso due reti elettrosaldate sulle due facce e cordoli perimetrali, rinforzi di armature sono previsti anche in corrispondenza di porte e architravi.
I pannelli portanti esterni sono invece formati da tre strati:
- strato interno di conglomerato armato, con spessore che varia dai 14 ai 20 cm
- uno strato compreso tra i 4-6 cm di materiale isolante
- crosta di rivestimento compresa tra i 8-6 cm di spessore in conglomerato armato, senza funzione portante.
I pannelli verticali sono vincolati superiormente ai giunti orizzontali dei solai tramite perni, inseriti in tubi d’opportuno diametro con riempimento di malta. Nei quattro angoli dei solai e nel centro dei lati sono previste delle piastre per garantire l’ancoraggio delle medesime ad altri pannelli formando delle chiavi elastiche a trasmissione di taglio.
L’S8GS è un sistema tecnologicamente stabile, caratterizzato da una maggiore attenzione ai dettagli e una grande sensibilità verso i problemi energetici, come ad esempio i ponti termici.
Nonostante questo, la velocità e la facilità di montaggio o smontaggio dei pannelli non ne ha risentito. Difficilmente edifici che presentano questo sistema possono ritrovarsi con problematiche legate alla bassa inerzia o alla bassa trasmittanza, quali ad esempio la condensa.
Da un punto di vista energetico il sistema rappresenta la miglior soluzione, perché prevede una coibentazione dell’intero edificio tramite l’interposizione di uno strato di isolante che, anche nel caso in cui sia troppo esiguo, non impedisce di intervenire con il classico cappotto esterno. Ciò permette di avvicinare questa soluzione a una delle classiche pareti tradizionali, sia come spessore che quindi come massa termica.
S8GS può ospitare la possibilità di addizione con altri sistemi, nella casistica di degrado parziale o totale dei componenti.
A cura di Ing. Ilaria Tortorella





















Sempre ottimi articoli su questo sito! Questo in particolare lo trovo ben fatto e soprattutto molto chiaro. E’ possibile sapere il titolo del libro da dove provengono i disegni costruttivi usati per l’articolo? Ciao
Ciao grazie mille, puoi scrivere direttamente a Ilaria Tortorella, autore dell’articolo: [email protected]